Casa en venta

San Fernando De Henares
235.000 €
4 dormitorios 4 dormitorios
158 m2 158 m2

Casa en venta

San Fernando De Henares

Descripción anuncio

''Inmobiliaria en San Fernando de Henares - Tecnocasa Estudio Desarrollo San Fernando S. L. ofrece oportunidad única en zona centro''.

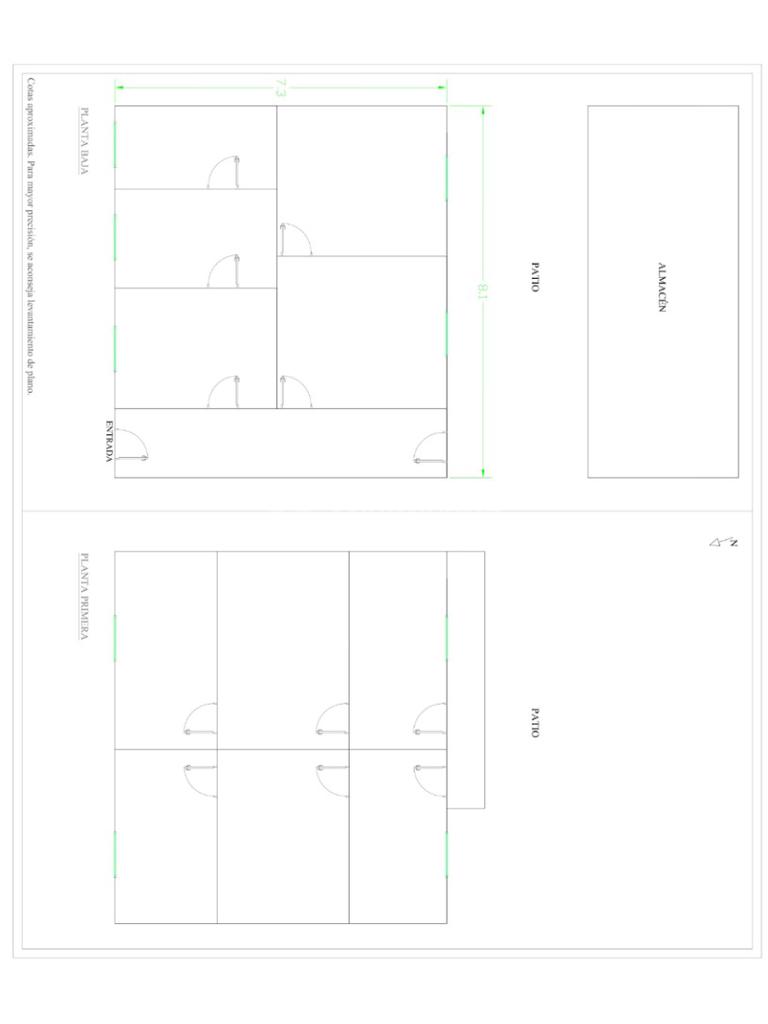
Se vende parcela urbana de 158 m² con edificación existente para demoler y reconstruir, situada en una de las zonas más demandadas y consolidadas del centro de San Fernando de Henares. Es una ocasión ideal tanto para auto promotores que deseen construir la casa de sus sueños, como para inversores que busquen desarrollar un nuevo proyecto residencial en una ubicación privilegiada.

La propiedad cuenta con una amplia fachada de 8 metros y excelente orientación, lo que permite aprovechar al máximo la luz natural y ofrecer múltiples posibilidades de diseño y distribución. Su superficie de 158 metros cuadrados brinda espacio suficiente para levantar una vivienda moderna con patio, garaje o incluso varias alturas según normativa.

Ubicada en una zona céntrica y tranquila, la parcela está rodeada de todos los servicios necesarios para el día a día: colegios, comercios, centros de salud, parques y transporte público a escasos metros. Además, dispone de una excelente comunicación por carretera, con fácil acceso a la A-2, M-45 y al aeropuerto Adolfo Suárez Madrid-Barajas.

Una oportunidad única para construir desde cero en pleno corazón de San Fernando de Henares, combinando la comodidad del entorno urbano con la libertad de diseñar un nuevo hogar o edificio a medida.

Y recuerde que, a través de nuestro departamento financiero KÍRON, podemos ayudarle a conseguir hasta el 100% de financiación.

Ver más

Características

Ref.:
638024
Libre:
Tipo de inmueble:
Señorial
Año de construcción:
1900
Ver más
Precio Precio
235.000 €
Cuota mensual Cuota mensual
€ 740 / mes
Cuota comunidad anual Cuota comunidad anual
€ 342

Clase energética

E
E
E
E
E
E
E
E
E
Consumo de energia:
316 kWh/m² año
Emisiones:
66 Kg CO2/m² año
Año de construcción:
1900

Servicios cercanos

Transporte público Transporte público
San Fernando
San Fernando
170 m
Hospital del Henares
Hospital del Henares
640 m
San Fernando
San Fernando
2,2 Km
Coslada
Coslada
2,2 Km
Transporte público
150 m
Colegios Colegios
Escuela Infantil Municipal Polichinela
270 m
Colegio público Jarama
320 m
Villalar
320 m
I.E.S. Antonio Gaudí
340 m
IES Vega del Jarama
430 m
Farmacias Farmacias
Farmacia del Henares
160 m
Farmacia
190 m
Farmacia Moya Rueda
200 m
Farmacia López Sáiz
420 m
Farmacia Romero Fernández
420 m
Hospitales Hospitales
Centro de estética
420 m
Hospital del Henares
560 m
Clínica Asepeyo
1,4 Km
Supermercados Supermercados
Ahorramás
150 m
Dia
180 m
La Plaza de DIA
370 m
Covirán
520 m
Supermercados
750 m
Tiendas Tiendas
Tiendas
90 m
Minnier Clothes
140 m
Mini Super
190 m
Tu y Yo Manuela
270 m
Pan Cota
270 m
Bar Bar
El Alcarreño
90 m
Monjia
150 m
Aurora
160 m
Bar Jose
170 m
Bar Simsom
180 m
restaurantes restaurantes
Goyma
110 m
Arrocería 002
150 m
El Mesonero
220 m
Duarte
240 m
Bambú
240 m
Ver más

Calcula tu hipoteca

Simple y sin compromiso
Entrada
%
al mes
Hipoteca
%
El resultado de esta simulación es orientativo. Los datos indicados no corresponden a condiciones reales de productos y no implican compromiso, obligación o vínculo jurídico-legal para el Grupo Tecnocasa.

Solicita un asesoramiento

Introduce tus datos
GRACIAS POR CONTACTAR CON NOSOTROS.
Esta oficina de Kìron se pondrá en contacto contigo lo antes posible para ofrecerte un asesoramiento financiero más completo y acorde a la información que nos has facilitado.
Franquiciado
Estudio Desarrollo San Fernando Sl
Ctra. de Mejorada, 8, Local 28830 San Fernando De Henares (M)
Ctra. de Mejorada, 8, Local 28830 San Fernando De Henares (M) Zona: CENTRO - SAN FERNANDO
9:30 - 14:00 y 17:00 - 21:00, sábados 10:00-14:00 y domingos con cita previa.

Nuestro equipo


  • Jesús Corcuera Escalonilla
    Colaborador

  • Ivan Gomez Ortega
    Colaborador

  • Alejandro Piqueras Blas
    Colaborador

  • Nicolas Longosz
    Franquiciado

  • Marcia Lorena Lorenzana Regalado
    Colaborador

  • Vasile Alexandru Laba
    Franquiciado
Franquiciado
Estudio Desarrollo San Fernando Sl
Ctra. de Mejorada, 8, Local 28830 San Fernando De Henares (M)

Franquiciado
Estudio Desarrollo San Fernando Sl
Franquiciado
Estudio Desarrollo San Fernando Sl

2025 Ibero Group Tecnocasa Services, S.L.U. - CIF B-65870776 - C/ Pallars, nº 1-3 Parque de Negocios Mas Blau II, 08820, El Prat de Llobregat (Barcelona-España). Red en franquicia - Cada sociedad franquiciada tiene su propio titular y es independiente del franquiciador.

Política de privacidad | Aviso legal | Pólitica de las Cookies | Información al consumidor | | Canal ético